Metcombe, Ottery St Mary

Guide Price £850,000

Sold
bedrooms-icon

4

bedrooms

bathrooms

2

bathrooms

receptions-icon

2

receptions

An individual and traditionally built brand NEW detached house in a lovely rural setting backing onto farmland. Extensive parking, garage, and attractively landscaped gardens.
The house has been traditionally constructed by reputable and established local builders and is offered with a 10 year NHBC warranty. It enjoys a delightful rural location backing onto farmland yet is convenient for the beautiful East Devon coastline (Sidmouth beach is just over 5 miles) and the Cathedral City of Exeter (city centre 12 miles) and Exeter Airport (5 miles).

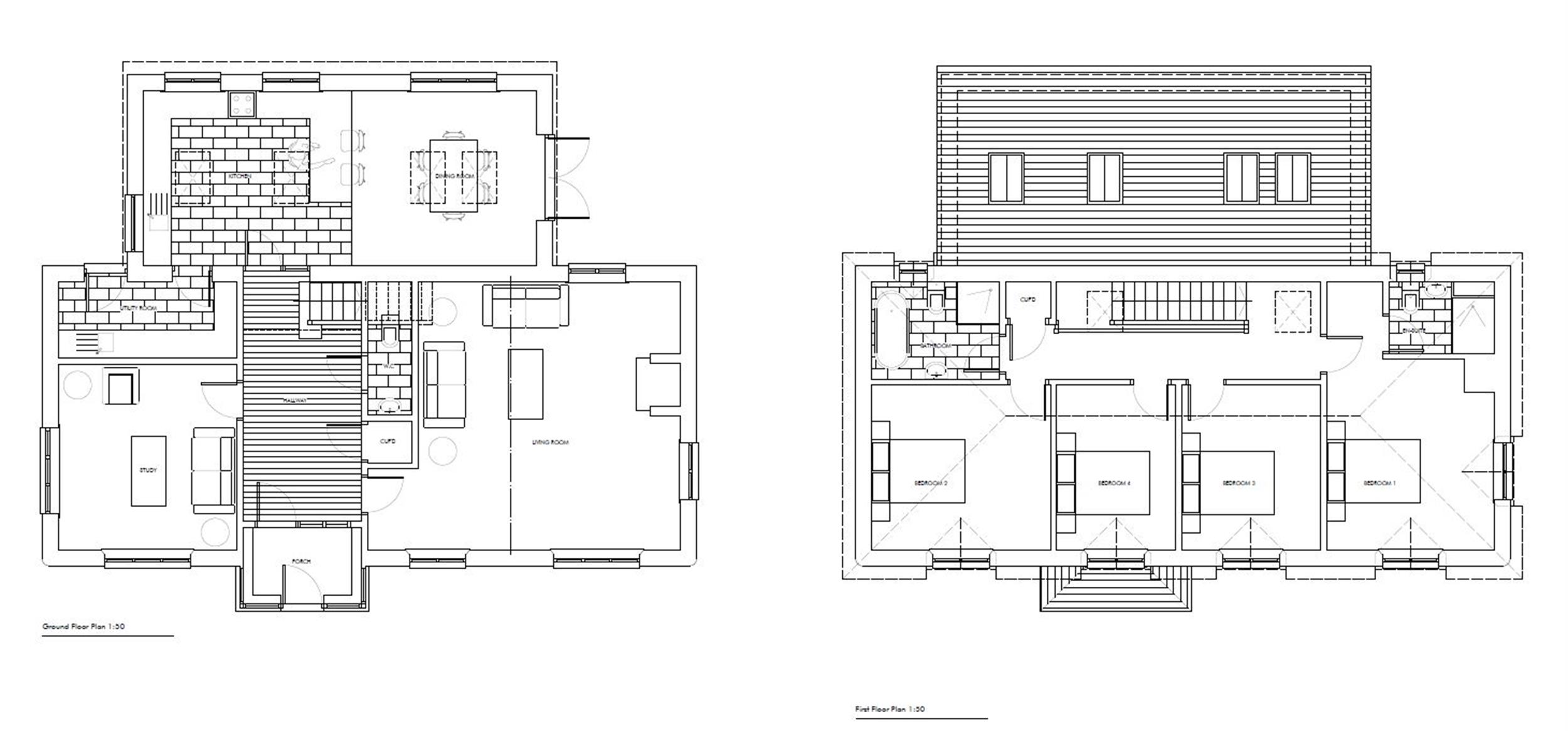
The spacious family accommodation benefits from double-glazing, a ground-source heat pump and under-floor heating, solar panels, and a private drainage system. An attractive porch leads into a light and airy reception hall with a downstairs cloakroom and a storage cupboard. The large sitting room has a triple aspect and a wood burner as a focal point. On the opposite side of the hall is a good-sized study with a dual aspect. The comprehensively fitted kitchen/dining room is a particular feature with a host of integrated appliances and extensive fitted units with quartz worktops, including an island unit and a breakfast bar. The dining area opens onto a paved patio and there are Velux windows with electronic controls. Adjoining the kitchen is a large utility room which also has a door into the garden. Upstairs is a spacious landing with further electronically controlled Velux windows and 4 well-sized bedrooms with lovely rural views and built-in wardrobes. The master bedroom has a superb en-suite shower room and there is also a family bathroom with a separate shower.

Outside
There is a gravel driveway with ample off-road parking leading to a Linhay-style detached garage. The house stands in attractively landscaped gardens with a paved patio and pathways and which back onto open farmland.

Directions
Leave the centre of Ottery St Mary along Mill Street, turning left at the ‘Give-Way’. Go over the river bridge and turn left into Strawberry Lane (signposted West Hill). Take the 2nd left (Fluxton/Tipton St John). After about 2 miles turn right (Metcombe) and after about a mile the house will be found on the right.

Location
Metcombe is positioned in a convenient yet rural area of East Devon, within easy reach of Exeter, Ottery St. Mary and Honiton and with good communication links including the A30, M5 Motorway and Exeter International Airport.
The highly sought after village of West Hill is 1.5 miles away with a village store and post office, church, village hall, garage, hairdressers and dental surgery. There is also a highly regarded primary school.
Ottery St. Mary, about 3.5 miles away has an excellent range of amenities, including a Sainsbury's supermarket, selection of independent shops, medical centre and popular secondary school, The King's School.

Health and Safety Statement
We would like to bring to your attention the potential risks of viewing a property that you do not know. Please take care as we cannot be responsible for accidents that take place during a viewing.

Please Note
Items shown in photographs are not included unless specifically mentioned within the sales particular, they may be available by separate negotiations. Any services, heating systems, appliances or installations referred to in these particulars have not been tested and no warranty can be given that these are in working order. The photographs may have been taken using a wide angle lens.

Floorplan

Send this property to your friends

 –Branch: ottery st mary Email: OTTERY@HALLANDSCOTT.CO.UK Telephone: 01404 812000

Book a Viewing

If you are interested in viewing the property above, please complete the following form:

    Select an office





    Preferred Date & Time


    I have Read & Accepted Privacy Policy.

    This form collects your name, email and content so that we can keep track of the comments placed on the website. For more info check our privacy policy where you'll get more info on where, how and why we store your data.

    Make an Offer

    If you are interested in buying the property above, please complete the following form and put your offer amount in, we will submit this to the vendor:



      Make an offer...

      I have Read & Accepted Privacy Policy.

      This form collects your name, email and content so that we can keep track of the comments placed on the website. For more info check our privacy policy where you'll get more info on where, how and why we store your data.

      Send to a Friend

      Do you know someone who may be interested in this property? Why not complete the following form with your details and that of your friend and we’ll send them a link.





        I have Read & Accepted Privacy Policy.

        This form collects your name, email and content so that we can keep track of the comments placed on the website. For more info check our privacy policy where you'll get more info on where, how and why we store your data.