Maer Road, Exmouth

£870,000

Sold
bedrooms-icon

3

bedrooms

bathrooms

2

bathrooms

receptions-icon

2

receptions

Beautifully presented, three double bedroom high specification, modern first floor apartment within a contemporary purpose built building, located in this highly desirable and sought after area, only a short walking distance to the seafront.
  • Highly Desirable Sought After Location
  • Walking Distance Of Seafront
  • High Specification
  • Spacious Open Plan Living
  • South Facing Balcony With Outstanding Coastal Views
  • Three Double Bedrooms
  • Master With En-Suite Bathroom and Dressing Room
  • Communal Gardens With Gate Leading Onto the Maer
  • Private Covered Parking Space
  • Approximately 1378 Sq. Ft.
Beautifully presented, high specification, modern first floor apartment offering approximately 1378 sq. ft. of accommodation, within a contemporary purpose built building, located in this highly desirable and sought after area, only a short walking distance to the seafront. The property features spacious open plan living and a South facing balcony with outstanding coastal views. Three double bedrooms:- Master with en-suite and dressing room, Shower room. Beautifully kept communal gardens with gate leading onto the Maer. Private covered parking space with further storage. Visitor parking.

LOCATION
The Exe Estuary has been designated an 'Area Of Outstanding Natural Beauty' and offers further exceptional walks and a cycle path leading to Lympstone and continues beyond through to Exeter. The opportunities to enjoy a variety of watersports in addition to equestrian and golfing pursuits in the area are also plentiful. Exmouth train station provides access to the nearby Cathedral city of Exeter and beyond. Exmouth, being a highly commutable coastal town and also within 20 minutes of the M5 motorway junction, offers an ideal base for those seeking an enhanced coastal lifestyle and enjoyment of all the area has to offer.

COMMUNAL ENTRANCE DOOR
Lift and stairs leading up to the first floor

PRIVATE ENTRANCE DOOR
Leading through to:-

ENTRANCE LOBBY
Solid wood flooring with underfloor heating. Built-in double cloaks cupboard with shelving and also houses the meters.
Alarm panel. Coved ceiling. Downlighter. Door to:-

MAIN HALLWAY
Solid wood flooring throughout. Coved ceiling. Downlighters. Buit-in storage cupboard with some shelving. Built-in airing cupboard with shelving and a mains pressure hot water cylinder. Door to:-

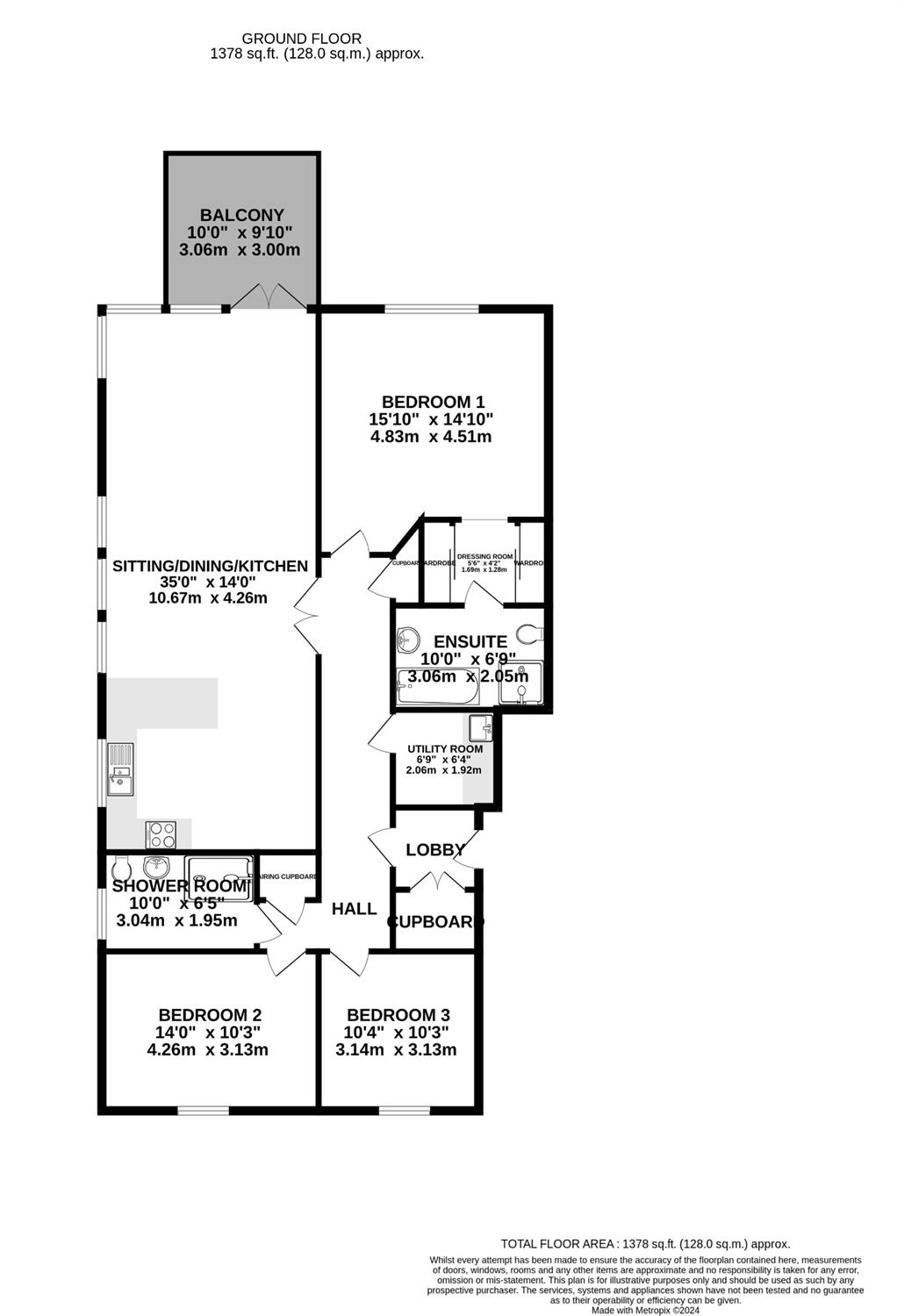
OPEN PLAN SITTING/DINING/KITCHEN 35' (10.67m) x 14' (4.27m)
An impressive room with double glazed windows to the side. Full width double glazed windows. Doors leading out to:-

BALCONY 10' (3.05m) x 9' 10" (3.00m) Glass and stainless steel balustrade. Stunning views over the Maer, entrance to the Exe Estuary and towards Berry Head.

SITTING/DINING ROOM AREA Solid wood flooring with underfloor heating. Coved ceiling. Downlighters. Two pendant lights. Leading through to:-

KITCHEN AREA Large blue pearl granite breakfast bar with matching upstands. Inset 1½ bowl sink with mixer tap and grooved granite drainer. Neff four ring induction hob. White fronted cupboards and drawers under with integrated Neff dishwasher. Corner carousel unit. Bin unit. Further range of units in dark grey with built-in double Neff oven. Integrated fridge and freezer. Pull-out larder unit. Three further wall mounted cupboards split by a glass and stainless steel Neff cooker hood with underlighting. Further double glazed window to the side. Tiled floor. Underfloor heating.

UTILITY ROOM 6' 9" (2.06m) x 6' 4" (1.93m)
Worktop surface in tiled splashback. Stainless steel sink with mixer tap. Cupboard under with space for washing machine and tumble dryer. Four wall mounted cupboards. Underfloor heating. Downlighters. Extractor fan.

BEDROOM 1 15' 10" (4.83m) x 14' 10" (4.52m)
Large double glazed window taking in the stunning views. Coved ceiling. Underfloor heating. Opening through to:-

DRESSING ROOM
Double mirrored sliding glass wardrobes to either side. Underfloor heating. Door leading through to:-

EN-SUITE BATHROOM 10' (3.05m) x 6' 9" (2.06m)
Panelled bath in full tiled surround with mixer shower tap. Walk-in shower cubicle in full tiled surround with built-in shower. Enclosed flush low level W.C. Wash hand basin with courtesy mirror, mixer tap and cupboards under. Tiled floor with underfloor heating. Chrome runged radiator. Shaver point. Downlighters. Extractor fan.

BEDROOM 2 14' (4.27m) x 10' 3" (3.12m)
Double glazed window to the rear. Coved ceiling. Underfloor heating.

BEDROOM 3 10' 4" (3.15m) x 10' 3" (3.12m)
Double glazed window to the rear. Coved ceiling. Underfloor heating.

SHOWER ROOM 10' (3.05m) x 6' 5" (1.96m)
White suite comprising:- double shower cubicle in full tiled surround with glass door and built-in shower. Enclosed flush low level W.C. Wash hand basin with mixer tap and cupboards under. Walls in full tiled surround. Large vanity mirror. Tiled floor with underfloor heating. Chrome runged radiator. Downlighters. Extractor fan. Opaque double glazed window to the side.

OUTSIDE
The development benefits from large beautifully kept communal grounds with several seating areas and a pedestrian gate leading directly onto the Maer.

PARKING
The property has a Covered Parking Space and additional Storage Area to the rear of the parking space. The development also has visitor parking spaces.

DIRECTIONS
From the town centre, proceed up Rolle Street and continue into Rolle Road. At the roundabout, take the second exit into Douglas Avenue. Proceed around the bend and continue along before taking a right hand turn into Maer Road. East Dunsinane will be found on the right hand side. what3words///loves.discouraged.faded

COUNCIL TAX BAND E

LEASEHOLD
999 years from new. Share of the Freehold

MAINTENANCE CHARGE £213.50 per calendar month

Health and Safety Statement
We would like to bring to your attention the potential risks of viewing a property that you do not know. Please take care as we cannot be responsible for accidents that take place during a viewing.

Please Note
Items shown in photographs are not included unless specifically mentioned within the sales particular, they may be available by separate negotiations. Any services, heating systems, appliances or installations referred to in these particulars have not been tested and no warranty can be given that these are in working order. The photographs may have been taken using a wide angle lens.

Floor Plan

EPC

Send this property to your friends

 –Branch: exmouth Email: EXMOUTH@HALLANDSCOTT.CO.UK Telephone: 01395 265530

Book a Viewing

If you are interested in viewing the property above, please complete the following form:

    Select an office





    Preferred Date & Time


    I have Read & Accepted Privacy Policy.

    This form collects your name, email and content so that we can keep track of the comments placed on the website. For more info check our privacy policy where you'll get more info on where, how and why we store your data.

    Make an Offer

    If you are interested in buying the property above, please complete the following form and put your offer amount in, we will submit this to the vendor:



      Make an offer...

      I have Read & Accepted Privacy Policy.

      This form collects your name, email and content so that we can keep track of the comments placed on the website. For more info check our privacy policy where you'll get more info on where, how and why we store your data.

      Send to a Friend

      Do you know someone who may be interested in this property? Why not complete the following form with your details and that of your friend and we’ll send them a link.





        I have Read & Accepted Privacy Policy.

        This form collects your name, email and content so that we can keep track of the comments placed on the website. For more info check our privacy policy where you'll get more info on where, how and why we store your data.