Well presented and spacious ground Floor 3 Bedroom Apartment on Exmouth Seafront with glorious direct sea views towards Berry Head, within walking distance of the town centre and train station.
Well presented and spacious ground floor three bedroom apartment on Exmouth Seafront with glorious direct sea views
towards Berry Head, within walking distance of the town centre and train station.
Large Open Plan Sitting / Dining / Kitchen Area
3 Double Bedrooms - Master with En-Suite Shower Room
Family Bathroom
Utility Room
Double Glazing & Gas Central Heating
South Facing Communal Lawned Gardens with Sea Views
Allocated Parking Space
No Onward Chain LOCATION: The property is situated in the most glorious location adjacent to Exmouth beach, just a 3 minute walk to Exmouth Marina and a 5 minute walk to the town centre. Exmouth Beach itself has over three miles of glorious golden sands, Exmouth is renowned nationally as a regional centre for water sports activities - especially kitesurfing, sailing & windsurfing. Exmouth is a bustling town with a vibrant shopping centre that also hosts a wide range of leisure and entertainment facilities, including a cinema, sports amenities, M&S food hall, and a range of excellent restaurants. It is only 12 miles by road or rail from the Cathedral City of Exeter, with its Intercity railway station, international airport, connection to the M5 motorway and all major shops and facilities.
The accommodation comprises (all measurements are approximate):Steps up to a communal entrance door which leads to the...
COMMUNAL HALLWAY. From here there is a private entrance door to the apartment.
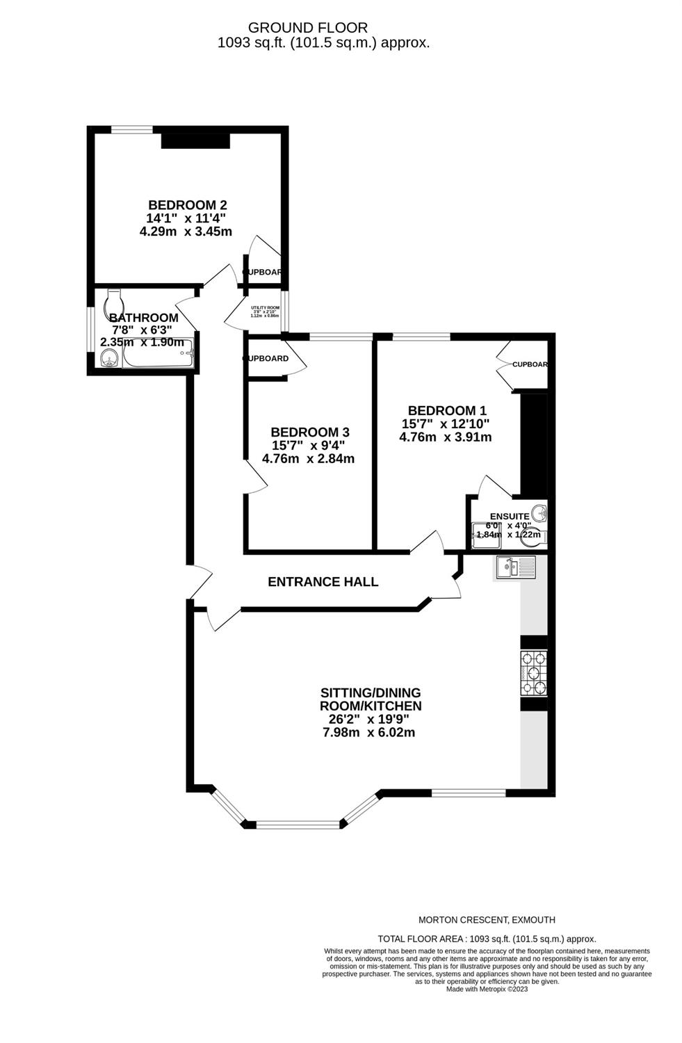
GROUND FLOOR
HALLWAY. Radiator. Storage cupboards. Decorative coved ceiling. Doors leading off to...
OPEN PLAN SITTING / DINING / KITCHEN 26' 2" (7.98m) x 19' 9" (6.02m): Large open plan room with very high ceilings and decorative coving. Large double glazed bay window and further double glazed window with views directly over the sea and towards Berry Head. Three old fashioned style radiators.
The
KITCHEN AREA has solid wood worktop surfaces in tiled splashback with inset one and a half bowl stainless steel sink with drainer and mixer tap. Central Range style cooker with five ring gas hob. Space for American style fridge freezer. Integrated slimline dishwasher. Wall mounted display shelving. Stone effect flooring. Door that leads back to the hallway.
BEDROOM 1: 15' 7" (4.75m) x 12' 10" (3.91m): Double glazed window to rear. Fitted double wardrobe. Coved ceiling. Radiator. Door to...
EN-SUITE: 6' (1.83m) x 4' (1.22m): White suite comprising corner shower cubicle with electric shower in full tiled surround. Enclosed flush low level WC. Wash hand basin. Walls in full tiled surround. Downlighters. Extractor fan. Radiator.
BEDROOM 2: 14' 1" (4.29m) x 11' 4" (3.45m): Double glazed window to rear. Fitted cupboard. Coved ceiling. Radiator.
BEDROOM 3: 15' 7" (4.75m) x 9' 4" (2.84m): Double glazed window to rear. Fitted wardrobe. Radiator.
BATHROOM: 7' 8" (2.34m) x 6' 3" (1.91m): White suite comprising panelled bath in full tiled surround with built-in mixer shower tap and glass screen. Pedestal wash hand basin. Low level WC. Opaque double glazed window to side. Shaver point. Radiator. Stone effect flooring.
UTILITY ROOM: 3' 8" (1.12m) x 2' 10" (0.86m): Sash window to side. Wall mounted gas fired combi boiler. Space for washing machine and tumble dryer.
OUTSIDE: To the front of the property is an
ALLOCATED PARKING SPACE and an area of
LAWNED COMMUNAL GARDEN facing in a Southerly direction with views over the sea.
DIRECTIONS: From the Victoria Road / Marina end of Exmouth seafront head East with the beach on your right hand side. Morton Crescent can be found just after The Grove pub on the left hand side. No. 15 is about a third of the way along the Crescent.
WHAT3WORDS: ///repay.remarking.bedrooms
TENURE: Leasehold - 999 year lease from 2016. 1/6 Share of Freehold.
MAINTENANCE: £60.00 pcm
COUNCIL TAX BAND: C - £1966.78
Health and Safety Statement
We would like to bring to your attention the potential risks of viewing a property that you do not know. Please take care as we cannot be responsible for accidents that take place during a viewing.
Please Note
Items shown in photographs are not included unless specifically mentioned within the sales particular, they may be available by separate negotiations. Any services, heating systems, appliances or installations referred to in these particulars have not been tested and no warranty can be given that these are in working order. The photographs may have been taken using a wide angle lens.